昆山玉山广场站地铁出入口及景观配套设施项目,亦称“新玉山广场”,是以苏州轨道交通地铁开发建设为契机而展开的城市更新工程的一部分,其包含昆山玉山广场地铁站1、2、3号地铁口和原玉山广场及其南延部分的景观提升工程。设计工作始于整个玉山广场及其周边片区的城市更新设计。
01
从城市设计说起
从建设策略总结,玉山广场片区城市更新是在地铁站厅地下施工阶段同步开展地下开发建设,以最大化利用地下空间,待地铁开通后分步实施地上建设的综合性工程。玉山广场站是地铁S1线与远期规划的地铁K1线交汇的换乘站,“T”字形平面的站厅位于城市主干道前进西路与北侧亭林路交口下方,未来可成为联络城市各个方向人流以及商业配套的TOD枢纽。
实现这一点需要在地面上将原本错位的南侧人民北路西移至此,正交为十字路口。新道路移位后与东侧昆山宾馆之间的楔形空地构成了最初始的场地环境。它被定义为景观步行区域还于市民,从而形成向南扩展的新玉山广场这一城市公共空间。

在总体布局上,以十字路口为中心,整个片区在城市更新后将呈现为:在东侧形成以新玉山广场轴线为视觉中心的城市级公共开放空间,以昆山宾馆地块整体改造提升形成玉山广场的背景建筑和空间边界;在西侧形成以侯北人美术馆、徐士浩宅、琅环公园为中心的艺术文化主题街区,和以原有市民活动中心为核心功能,以体育文化为主题立体化商业街区。
场地上原有的多个城市空间成为分区域的“空间核”,围绕其进行扩容更新和环境再造,摈弃大体量商业综合体的思路,代之以小尺度、密路网的街区式商业,城市原有的的建筑肌理和街巷空间得以延续。因开发平衡需要,有限的高层建筑有节制地出现在现状大型建筑的周边,以形成相对集中的群落。


城市设计的整体方案于2021年底获批并开始分步实施。2024年初,地铁玉山广场站地上部分竣工并投入运营,成为首先亮相的部分。
02
广场的改造和南扩
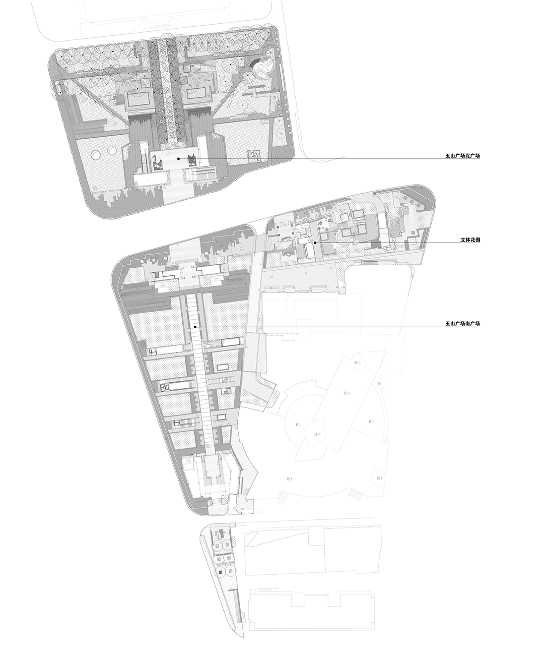
昆山玉山广场形成于1999年原玉山镇镇政府南侧大院的腾让,现在是昆山市民活动、休闲的日常去处。南扩后的新玉山广场是整个片区更新的“题眼”,它由三个区域组成,分别是前进西路北侧的原广场、南侧新扩部分以及中轴线东侧前进西路旁立体花园。

三个区域各有特征:北广场是在原有城市公园的基础上与地铁出入口结合,以改造工程为主的区域;南广场则是延续北广场历史轴线,连接多个地铁出入口的倒三角形绿化景观步行空间;东侧立体花园实际上是在多组地铁风井和地铁出入口之间见缝插针组织沿路城市公共空间的景观集合。

对照清道光年间的昆山县署图,可见玉山广场就处于旧时衙署的位置。现状玉山广场中早已不见历史遗存,却有参天的香樟和水杉林。广场为高出周边道路的一片台地,大树的树底也高于街道地面和地铁出入口的设计标高。为不破坏树根,设计在让出树根的区域将广场地面局部下沉,以平接地铁出入口和周边道路。去往站口的人行通道从各个方向汇入广场,隐没于场地的花径和矮墙中,行走其中颇有曲径通幽的意趣。



▲ 玉山广场改造设计生成分析
结合地铁站口分布和广场功能需求,设计将三个出入口及休息廊整合为一组对称布置的坡顶建筑,落位于老地图中县衙大门前照壁和院闱的位置,形成布局上的契合。广场上界定高差的砖石矮墙和水池边界也在树下还原出旧时衙署的布局,以复原现场式的地景设计来记载场地上的历史信息。



在广场中央,两排高大的水杉树自然形成一条南北向的步行中轴。这里以大尺寸预制砼板铺砌,以强调这条历史上的老城中轴。

随着玉山广场南扩,轴线也一直向南延续成290米长的步道通廊。步道两侧设置座凳与绿化,绿地比地面略高起,向外找坡,在闹市中形成相对静谧的场所。步道上对称出现的构筑物为地下空间的出入和取风口。层层白墙分隔出递进式的行走空间,以紫竹、湖石点缀其中,供市民休憩时观赏。




步行轴线在南端与人民路交汇。一组坡顶木构的休息廊在此整合了地铁的地上设备区和地下车库出口,形成轴线南端的收束。至此,这条昆山城历史上重要的地理标识再次展露于世人眼前。



03
地铁站口地上建筑
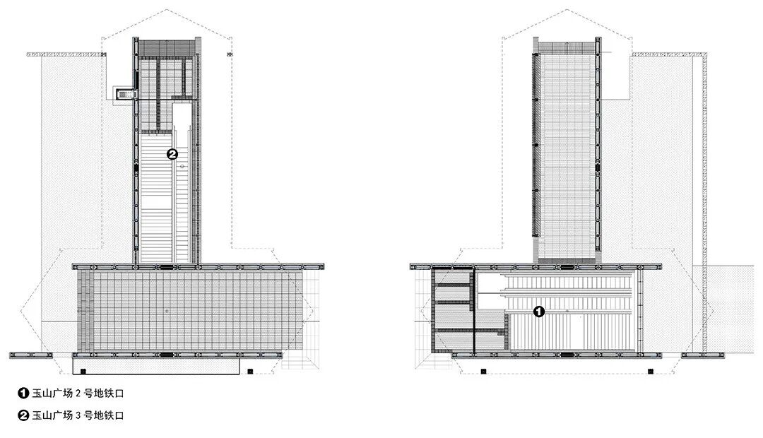
玉山广场地铁站口也分为南、北两组,北区为已经通车启用的S1线4个地面出入口(含1个无障碍电梯出入口),分布于前进中路南、北两侧。南区是为未来K1线提供的地面出入口及风井设施,以及轴线南端的“U”形休息廊,它们共同形成了玉山广场中轴步道上的节点建(构)筑群。




以北侧地铁站口为例,设计设定的策略是:
功能上:设置、预留地铁站口的周边服务设施和休闲空间,适应市民出行需求。
形式上:创新性地回应地域文脉传统,探索表达新苏式建筑风貌的路径方法。
结构上:组合运用亲和性材料和轻量化结构,控制性引入自然光,实现明亮有“温度”的进出站环境。
建造上:以装配式设计和施工方案,压缩现场施工周期,提升施工精度。





由此,在站口的建筑设计上做出一系列尝试:
引入钢木混合结构:“T”字形的钢梁藏于木质腹板梁间,形成网架整体受力,使结构构件小型化,视觉上兼具木构的温和与现代建筑的轻盈;大跨度的屋架处以拉杆加强结构的稳定性。灯光和布线整合设计于装配式的屋架菱格单元之中。


深色玻璃光伏屋面:深灰色彩釉玻璃与碲化镉光伏玻璃组合而成的深色玻璃屋面,保证了自然光受控的射入地下空间,明亮的出入环境成为乘客搭乘自动扶梯出地铁站时的第一体验。屋面玻璃的彩釉面外置,以增强屋顶的漫反射效果,外观质感接近传统江南建筑中青瓦屋面的视觉印象。


白色UHPC墙板构造:十字断面的两列钢柱支撑起整个屋面,并隐藏于双面UHPC干挂外墙板中,墙体与屋面间脱缝,引入自然风,同时增强屋面的悬浮感。挂板表面为纵向木纹肌理,墙板间有节奏地露出钢柱翼缘,结合压顶和墙裙的石材共同形成白色墙体上的深色格构,饰以花窗点缀,让人联想到江南园林中的景墙。


地铁站口建筑由此形成。钢木材质的网架结构、深色玻璃屋面、白色UHPC外墙以及花窗组合,都是对“粉墙黛瓦”的江南建筑和园林语言的现代式转译。

昆山玉山广场片区的城市更新,可以被看作中国城镇化发展的当下,既有老城片区开展城市更新工作的标准模本。它具备全面的城市更新类型特征:完整的街巷肌理、丰富的历史背景,面临的城市问题,和适宜的建设契机……从片区的城市设计到新玉山广场的建成,截至2025年,这个区域的城市更新已历经五年。


▲ 玉山广场通往去往3号地铁口的步行区
如今S1线地铁已经从蓝图变为昆山市民出行的日常。后续部分的设计也随着城市发展和政策调整不断的调整、更迭。伴随式的服务也让设计团队深刻感受到政策、经济、民生等多方因素对项目实施的深远影响。很多目标在未来能否实现或以何种面貌呈现仍未可知。

▲ 玉山广场北区景观


▲ 改造后的玉山广场站已融入市民生活 冯君 / 摄

▲ 改造后的无障碍地铁口 喻弢 / 摄
冀望玉山广场这一昆山的城市核心、历史人文底蕴丰厚的区域和它所代表的“玉山”文化精神,将通过这个片区城市更新中审慎的设计思考和分布建设而得到传承复兴。


▲ 2号地铁口外观夜景

▲ 2号地铁口外观夜景 喻弢 / 摄
项目位置 江苏省昆山市
建成时间 2024年5月
建筑面积 526平方米
设计主持 崔愷 喻弢 冯君
建筑专业 周志鹏 胡水菁 温世坤 王子良
景观专业 冯君 王渼雯
总图专业 齐海娟
结构专业 史杰 郭天晗 李明娟
给排水专业 石小飞 关若曦
电气专业 许士骅
施工深化设计 庄晓峻 杨阳
泛光照明设计 北京宁之境照明设计有限责任公司
幕墙深化设计 苏州苏明装饰股份有限公司
建筑施工 上海思卡福建筑科技有限公司
景观施工 常州市森通园林绿化工程有限公司
建筑摄影 李季
评论