
随着社会经济水平的发展,城市化率日趋饱和,人们的居住习惯与需求在城市化进程中得以重塑,见证时代发展历程的老城区及老旧小区,开始凸显配套设施不同步当下需求的滞后性问题,城市社区服务面临新的挑战。在此城市更新诉求背景下,无论是政府、城市运营商,还是城市设计师都需要站位城市发展“过去-现在-未来”的脉络里,自上而下与自下而上地为城市的整体向好发展集智集力。南京保利南自·智汇中心即携带着这样的复杂基因诞生的。

▲南京保利南自·智汇中心沿街实景图
该项目位于南京市鼓楼区的老城区城市中心地段,新模范马路与南瑞路交叉口,距离地铁1号线新模范马路站仅约1公里,板块周边是传统老式居住区及高等院校的聚集地,缺乏完善的大型公共生活配套和休闲、绿化空间,城市风貌保有岁月交织的痕迹。设计用地约3.2万平米、容积率4.5,有严格的50米限高要求,同时地下室底板已完工,开挖深度受限制,业态开发涵盖办公、商业、公寓。设计如何将开发定位与城市关怀双向统一?

▲基地原始现场鸟瞰

▲基地周边原始街景


基于场地受限,且需要考虑建筑落位对周边住宅的日照影响,项目建筑布局局限性很大。设计提出“嵌入式”手法,通过梳理各建筑功能与周边建筑的合理关系,将原有周边的不利因素影响降低到最低,甚至化不利为有利。首先,规划将四栋办公建筑沿南瑞路布置,最大化占足沿街界面;在办公建筑底部设置商业业态,塑造混合业态的活力街区;两栋公寓则落位基地北侧,远离城市快速路,更加安静、私密。

▲三大功能落位
在场地南侧、中央、北部公寓楼栋间,则通过植入下沉广场和首层架空空间,实现多方位的城市人流导入,激活其内外的互动性。

▲口部向城市打开,人流导入贯通
楼栋间通过设置局部退台和架空花园,为高密度的组团内部空间提供更多自然绿色和采光通风。

▲局部退台,提升组团内景观和采光
由此,此多功能建筑群以嵌入式服务综合体的形式,为此片区的城市更新注入新鲜血液,有效盘活利用城市存量资源,推动社区嵌入式服务可持续发展,实现项目开发定位与城市关怀的双向统一。

▲规划生成

为了真切回应片区场域公共休闲、绿化空间缺失的问题,设计在有限的条件下,着重从城市角度,描摹了下沉广场和架空空间等公共空间的塑造。这不仅为周边社区提供了服务配套设施,也为项目自身梳理功能混合增加的复杂流线和管理上的组织问题提供最优解。中央下沉广场,最大化释放公共活动空间,服务周边密集社区使用需求,同时为项目引入源源不断的人流。

▲中央下沉广场半围合节点空间



▲下沉广场满足一定的人流聚集需求
街角灰空间会同街角广场承载人流流动的同时,作为项目“宜悦里”时尚购物中心的昭示性标志,引导人流前往商业业态,享受全方位的生活配套服务。

▲街角入口灰空间节点

▲街角灰空间引导人流


▲商业内部中庭

建筑形象的塑造难点在于,既要打造片区新的形象节点,但风貌上又不能过于突兀,与场域环境脱节。设计思考:办公、商业、居住多功能的混合空间,犹如码头一般成为城市内传输交流的重要平台,为城市注入更多的资源和活力。因此,设计在建筑形体上借鉴集装箱灵活错动的组合关系,以“对外呼应城市、对内激发活力”为底层逻辑,利用现代的体块穿插手法和精致的幕墙肌理,塑造城市街角新地标。
对外呼应城市
沿城市道路,立面采用“上整下碎”的组合方法,兼顾远景城市界面的展示性和近人尺度的丰富性。上方办公业态由简练概括的体块构成,塑造楼宇集群感,幕墙顺应形体变化,理性克制。一致的贴线下,商业裙房并不刻意地凸显材质变化,反而沿用了塔楼的整体材质,通过体量模数变化自然界定功能。南侧街角,作为城市重要展示面,采用LED屏结合局部架空设计,强化了视觉昭示性。

▲基座通过体量模数变化自然界定功能

▲街角入口效果图与实景图对比
不同于常规沿街商业统一灯箱的“门头式”处理手法,设计利用雨棚作为店招落位控制的“基准线”,商家logo以独立的立体字形式呈现,在简约现代的幕墙背景下,宛若音符跳动跃然纸上。让街道充满活力,给周边老城区的市民提供一个交流购物的场所空间。

▲沿街商业界面

▲商业裙房效果图与实景图对比
对内激发活力
在内向空间上,中央下沉广场区域塑造了一个内凹轴线空间,立面采用横向舒展的大面积彩釉玻璃,削弱了体量的厚重感,构筑场域清透明亮的空间效果。

▲下沉广场效果图与实景图对比
同时,利用景观台阶将沿街人流引导至商业内部,未来也将便于商家在户外开展各类展销活动。

▲下沉广场局部细节效果图与实景图对比

下沉广场处,玻璃外墙和玻璃护栏都采用竖纹彩釉,增加体量感,与大量灰空间穿插结合,形成丰富的空间层次。

▲下沉广场节点图
商业二三层立面,采用竖条彩釉玻璃;一层体块内退,采用普通高透玻璃。上实下虚,有效降低对城市界面的压迫感。

▲裙房墙身剖面图

▲幕墙局部实景图
办公入口处,设备百叶利用体块进退,巧妙隐藏于吊顶下部,保证入口形象纯粹、完整的视觉效果。

▲办公入口墙身剖面图

▲办公入口仰视实景图
办公主楼,整体采用200mm内凹式线条作为层间处理,区分上下体块,同时采用金属夹片作为隐藏式开启扇的外部固定件,保证立面的干净纯粹。竖向构件层间,微微断开150mm,保证线条不会因为过长而产生歪斜。

▲办公主楼节点图

▲办公主楼局部实景图
技术图纸

▲总平面图

1.办公门厅 2.商业 3.玄关 4.中庭 5.设备用房 6.下沉广场
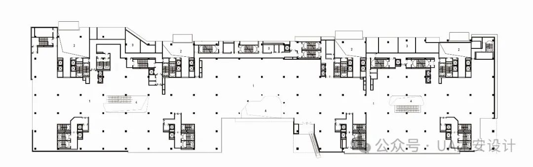
▲首层平面图

1.商业 2.办公门厅上空 3.设备用房 4.中庭
▲二层平面图


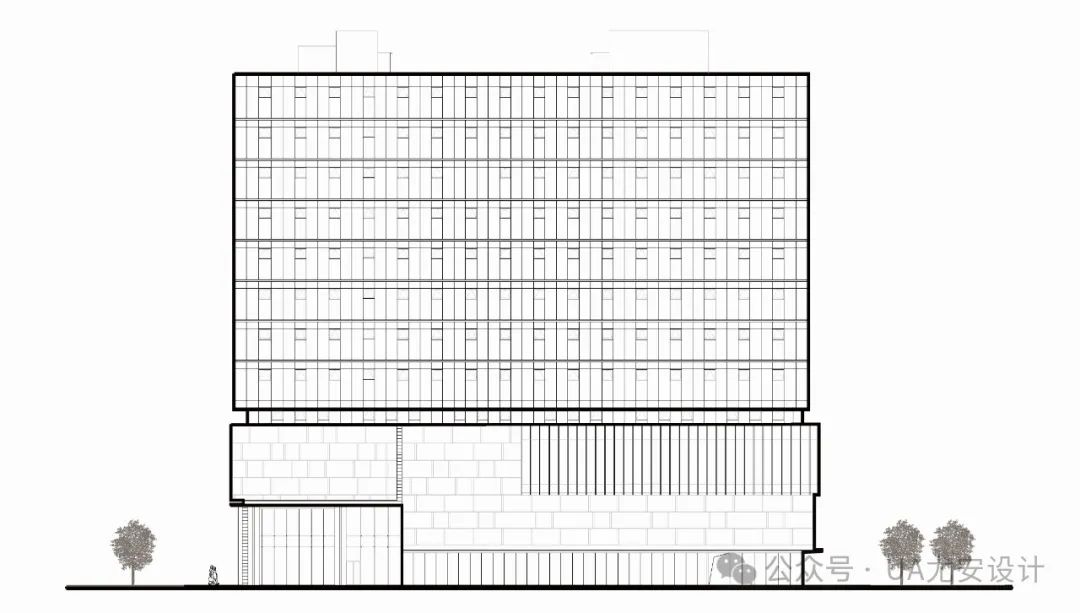
▲立面图

建筑类型:商业、办公、公寓
建筑面积:220 258平方米
开发业主:保利发展控股、国电南自
规划设计:UA尤安设计事业四部
建筑设计:UA尤安设计事业四部
室内设计:上海域达建筑设计咨询有限公司(商业)
矩阵纵横设计股份有限公司(写字楼营销中心)
景观设计:SWA(方案)
棕榈设计集团有限公司(扩初及施工图深化)
幕墙设计:上海睿柏建筑外墙设计咨询有限公司
施工图设计:南京金宸建筑设计有限公司(非人防)
江苏浩森建筑设计有限公司(人防)
建筑摄影:夏强
评论